
Estafettewonen
Bouwconcept voor tijdelijke huisvesting van verschillende doelgroepen in permanente gebouwen met fantastisch sociaal beheer
Permanent gebouw
Nieuwbouw met hogere kwaliteit, langere afschrijvingstermijn, hoger comfort, Door modulaire houtbouw tegelijkertijd ook snel realiseerbaar, circulair en natuurinclusief. Kan goed opgenomen worden in plannen voor gebiedsontwikkeling en in verdichting van het bestaand stedelijk gebied.
Tijdelijk gebruik
Ruimte voor mensen met een (acute) tijdelijke woonvraag. Concept van onzelfstandig wonen anticipeert erop dat bewoners weer doorverhuizen na gemiddeld 3 jaar. Een flexibele schil voor de woningmarkt
Samen leven (wonen en voorzieningen)
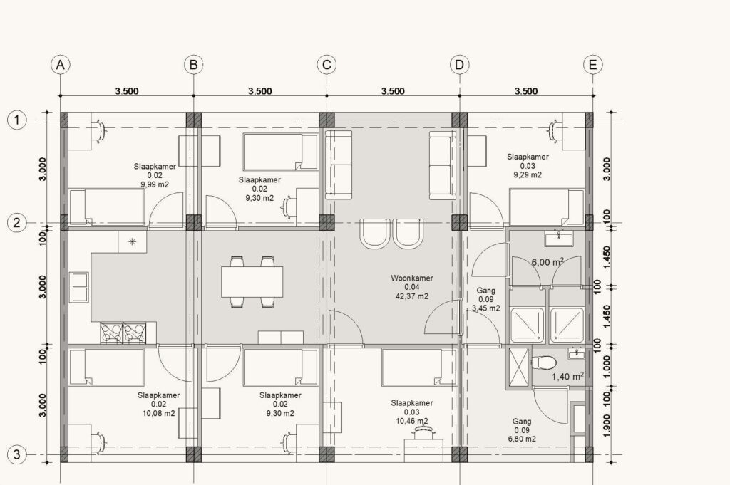
Onzelfstandig wonen. Bewoners delen sanitair, keuken en woonkamer met 5 anderen. Op complex niveau gedeelde functies die ook meerwaarde kunnen hebben voor de omgeving.
Actief sociaal beheer
Sociaal beheer zorgt er voor dat de mix van bewoners goed kunnen samen leven. Dit door het activeren van de community vorming (ook met de omgeving) en het bewaken van de leefregels van het project. De programmering is gericht op de verbinding van bewoners. Tevens wordt er gezorgd voor het technisch beheer en onderhoud en de exploitatie van de gedeelde voorzieningenruimten.
Diversiteit bewoners
Mix van verschillende bewoners. Niet
alleen op complex niveau, maar ook
”gespikkeld” per woning van 6 personen.
Geschikt als doorstroomvoorziening
statushouders, Oekraainers, maar ook
jongeren en spoedzoekers (bijv. na
echtscheiding). Een mix van asielzoekers (15-60%, spoedzoekers 25% en jongeren (15-60%).
Geen oplossing voor alles
De vraag naar tijdelijke woonruimte is structureel. Door de krappe woningmarkt is er een groeiend aantal spoedzoekers dat er niet tussenkomt. Ook is het steeds onvoorspelbaarder welke spodzoekers op welk moment behoefte hebben aan een tijdelijke woonruimte. De woningvoorraad moet meer en beter kunnen meeademen. De structurele vraag naar deze tijdelijke woonruimte vraagt dan ook om een ‘structurele flexibele schil’
Het gebouw / de projecten
Het Gebouw
- Permanent Flexibel woongebouw: meer comfort, hogere kwaliteitl
- Relatief goedkoop met hoge maatschappelijke meerwaarde
- Duurzame houtbouw met hoge ruimtelijke kwaliteit
- Natuurlijke doorloop: georganiseerde vorm van woningdelen


De projecten
- Minimaal 5 plekken om te kunnen starten met schaalvoordeel
- Hoge mate van standaardisatie om de kosten laag te houden
- Geef ons een ‘voetbalveld’, wij realiseren daar toekomstbestendige gebouwen in Houtbouw